Terrains à bâtir dans lotissement, Sainte Marie 269 m² à 406 m²
(Honoraires inclus)
Description du bien
Découvrez ce nouveau lotissement résidentiel situé à Sainte-Marie, dans un environnement calme et verdoyant, à proximité des commodités, des axes principaux et à seulement quelques minutes du centre-ville.
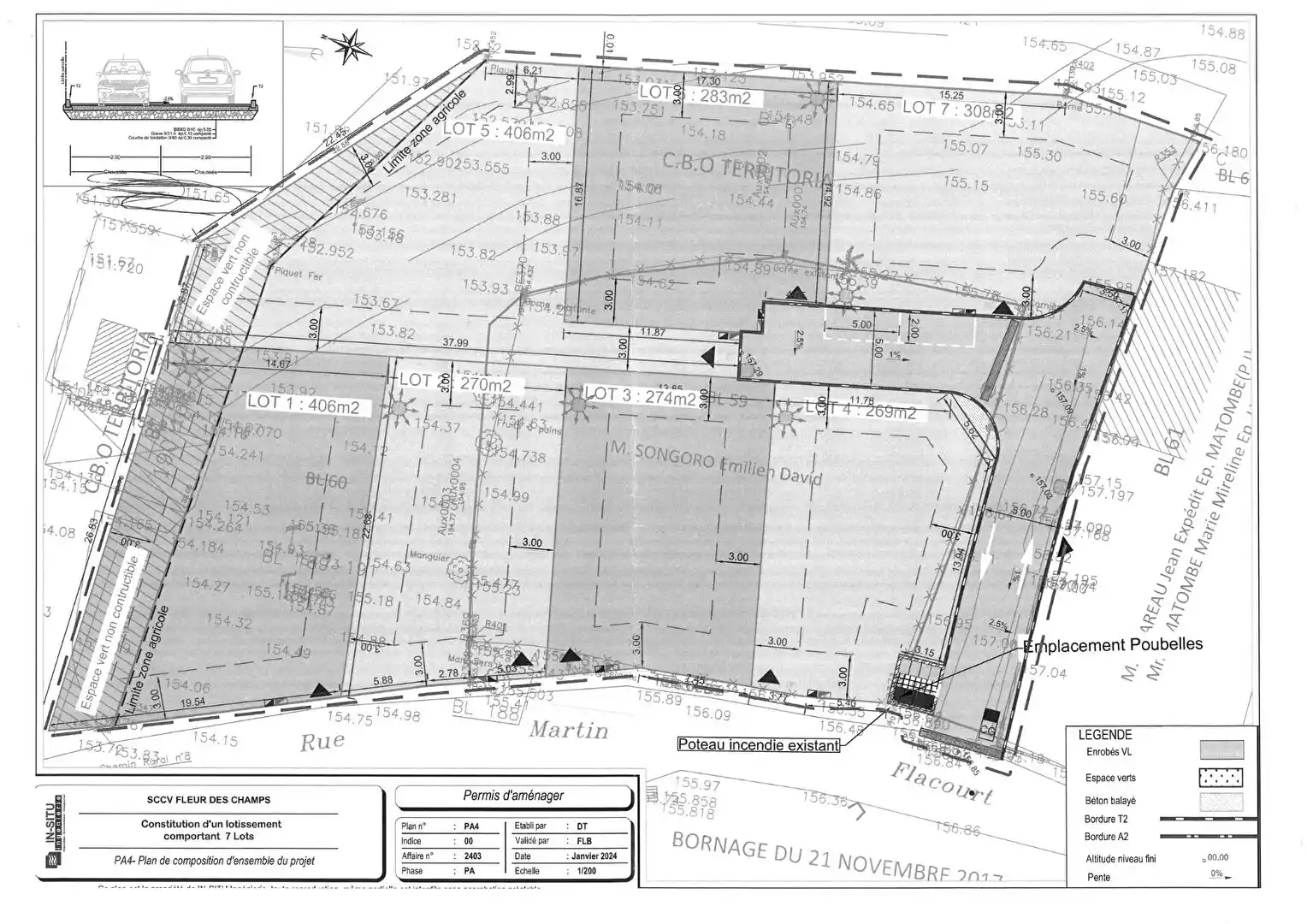
7 parcelles à bâtir, entièrement viabilisées, terrains plats allant de 269 m² à 406 m², idéales pour la construction de votre maison principale ou d'un projet locatif.
Les lots 5, 6 et 7 bénéficient d'une vue dégagée sur les champs de canne et la mer, offrant un cadre de vie paisible et agréable.
Livraison du lotissement : décembre 2025
Lot 1: 406m² 232 200 FAI
Lot 2: 270m² 157 400 FAI
Lot 3: 274m² 159 600 FAI
Lot 4: 269m² 156 850 FAI
Lot 5: 406m² 232 200 FAI
Lot 6: 283m² 155 650 FAI
Lot 7: 308m² 178 300 FAI
ZONE PLU UD
La hauteur maximale des constructions est limitée à:
- 8,00 mètres à l'égout du toit
- 11,00 mètres au faîtage
- 10,00 mètres à l'acrotère en cas de toiture-terrasse
Emprise au sol maximale : 50 % de l'unité foncière
Espace libre paysager : minimum 25 % de la surface du terrain, avec 1 arbre haute-tige par 100 m², au moins 1 arbre par lot
Perméabilité du sol : minimum 30 % de la parcelle
Pour plus de renseignements ou pour organiser une visite, contactez-nous au 0262 41 18 18 ou par mail à contact@prmi.re.
Agent commercial Benjamin SGRO 0692 36 11 15
(6.02 % d'honoraires TTC à la charge de l'acquéreur.)
Détails du prix
Simulateur de financement
Bien non soumis au DPE
Localisation Épingle au centre de la commune.
Ma capacité d'achat
* Service fourni par Klézio. Les résultats sont indicatifs et ne constituent pas une offre de crédit (Art L311-1 Code consommation).








