Villa Neuve de T5 en R+1 - Possession Buf Mort
(Charges comprises)
Description du bien
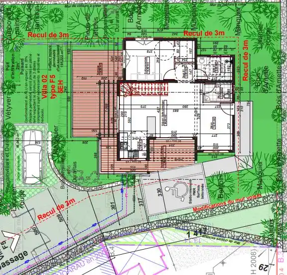
Bien soumis à la défiscalisation Loi Girardin - Koytcha Immo vous propose à la location dans un secteur résidentiel et prisé à la Possession Chemin Buf Mort, 1 villa de Type 5 en R+1 de 108m² de Superficie Habitable et 133 m² de Superficie Totale.
Elle est composée en RDC:
- 1 chambre parentale avec 1 accès terrasse et un espace dressing
- 1 WC
- 1 salle de douche
- 1 salon/séjour accès terrasse
- 1 cuisine
- 2 terrasses
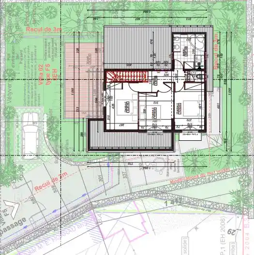
En R+1:
- 3 chambres
- 1 WC
- 1 salle de bain avec douche et baignoire
Loyer: 1700
TEOM mensuelle: 50
Dépôt de Garantie: 1700
Frais d'agence: de 1408
Pour plus d'informations merci de contacter Aurélie Brézé, Négociatrice en Immobilier. « Informations complémentaires sur www.koytchaimmo.re » « Médiateur de la consommation : ANM Conso, 62 rue Tiquetonne 75002 Paris www.anm-conso.com » « Les informations sur les risques auxquels ce bien est exposé sont disponibles sur le site Géorisques : www.georisques.gouv.fr »
Surface du terrain : 400 Nombre d'étages : 1 Nombre de pièces : 5 Jardin Vue mer
Informations complémentaires sur www.koytchaimmo.re Les informations sur les risques auxquels ce bien est exposé sont disponibles sur le site Géorisques : www.georisques.gouv.fr
Détails du prix
Performance énergétique
Consommation énergétique
Emissions de gaz à effet de serre
Localisation Épingle à l’emplacement réel du bien.
Ma capacité d'achat
* Service fourni par Klézio. Les résultats sont indicatifs et ne constituent pas une offre de crédit (Art L311-1 Code consommation).








