chez PRMI / Terrain constructible 'Quartier pêcheur' Terre-Sainte (97410)
(Honoraires inclus)
Description du bien
Emplacement très recherché : 'Quartier pêcheur' Terre-Sainte !
Résidentiel et calme, proche de la promenade des Alizés, de la plage, des restaurants, des écoles et bien sûr du centre ville de Saint-Pierre !
Terrain de 217 m2 : plat, nu, à bâtir.
Celui-ci bénéficie déjà d'un permis de construire obtenu en 2022.
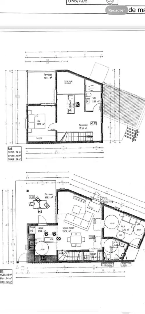
Pour y édifier une maison individuelle de 92 m2 (habitable) de type R+1.
Voir plan + photos.
-- IDEAL POUR UNE RESIDENCE PRINCIPALE / SECONDAIRE / LOCATION SAISONNIERE --
Informations complémentaires :
- borné (via géomètre)
- non viabilisé (mais raccordements proches y compris au tout à l'égout)
- non clôturé
-exposition (nord)
Ps : pas de copropriété, pas de lotissement et pas de servitude !
Visite possible avec un spécialiste de Saint-Pierre : Bruno Descontus.
Tél : 0262 41 18 18
Mail : contact@prmi.re
Honoraires à la charge du vendeur.
Bien non soumis au DPE.
Les informations sur les risques naturels auxquels ce bien peut-être exposé sont disponibles sur le site : georisques.gouv.fr
Détails du prix
Simulateur de financement
Bien non soumis au DPE
Localisation Épingle au centre de la commune.
Ma capacité d'achat
* Service fourni par Klézio. Les résultats sont indicatifs et ne constituent pas une offre de crédit (Art L311-1 Code consommation).









